Entwicklung Riedern
Grundriss Einstellhalle
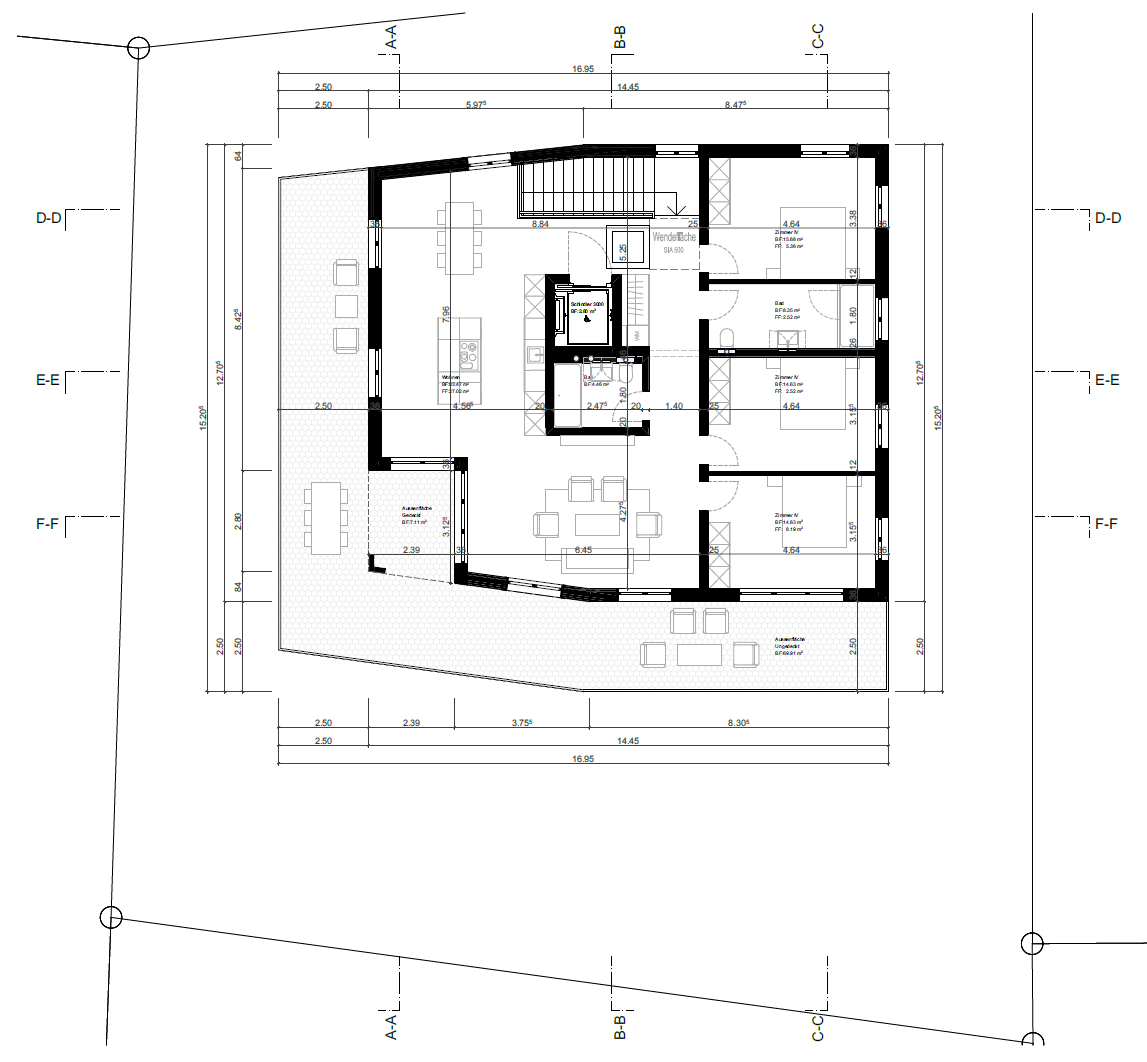
Grundriss Erdgeschoss
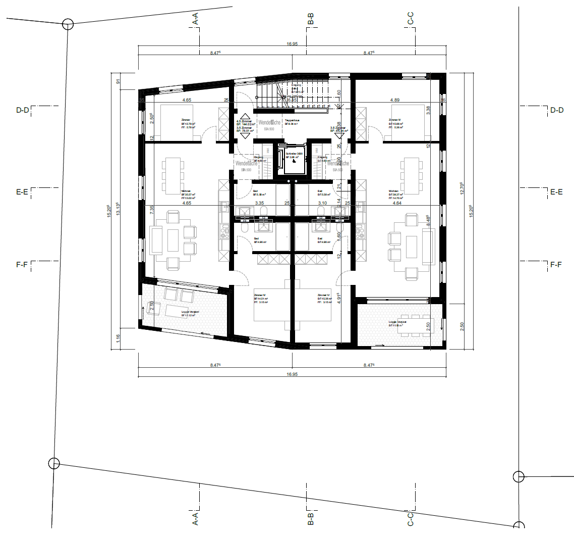
Grundriss Obergeschoss
Grundriss Dachgeschoss
iNTERESSE BEKUNDEN
Füllen Sie das Formular aus und enthalten Sie exklusive Updates zum Verkaufsstart und Dokumentation sobald verfügbar.